BAZINIO RINKINIO DALYS | PILNA VISAM SEZONUI SKIRTA PAKUOTĖ
-
Architektūros ir inžinerijos techniniai brėžiniai
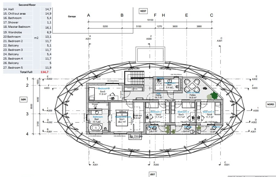
- Kupolo aukštis ir vidaus namas, aukštų planai, kambario planas, plotų apskaičiavimas pilnas paketas.
- Stiklo kupolo apkrovų skaičiavimas Europai (vėjo, sniego, seisminių apkrovų skaičiavimai).
- Sienų konstrukcijos, visų sienų sluoksnių konstrukcijos.
- Betono konstrukcija, pamatų analizė, šildymo sistema, betono grindys.
- Interjero ir eksterjero sienos + apdaila, sienos, grindys, plokštės visuose kambariuose.
- Pilna elektros instaliacija, visos patalpos, inžinerinės sistemos. Vidaus sistemos.
- Interjero ir eksterjero apšvietimo koncepcija (3D modelis).
- Santechnika ir nuotekų šalinimas. Patalpų įrengimas.
- Šildymas, vėdinimas ir oro kondicionavimas, apkrovos skaičiavimai.
-
RĖMO SISTEMA | STRUKTŪRINIS FASADAS
- Aliuminio konstrukcinis rėmas ir dengto plieno kupolo jungtys. Montavimo rinkinys: Tarpinės dalys, varžtai, tvirtinimo elementai, visų elementų žymėjimas ir pakuotė.
The construction carcass is produced from aluminum structural profile parts for structural facades, the parts include a sealing rubber, fixing kit. Steel connection hubs: STAR type – 4-5-6 directions, powder painted. A set of stainless steel rivets 6.4 mm for carcass construction.
Each geodesic dome structure is designed according to load calculations. This in turn ensures safety and durability. Our structural engineers can calculate the maximum loads of the equipment suspended by the geodesic dome of regional norms
PAPILDOMA GALIMA DEKORATYVINĖ IR PRIEŠGAISRINĖ APSAUGA
-
Pagrindinis rinkinys | Dvigubo stiklo plokštės | 6 mm stiklas – 18 mm ARGON90% – 44,1 EN2PLUS laminuotas
Trikampio formos langai iš laminuoto stiklo paketų kampinių stogų stiklo fasadų dalys. Išorinis stiklas yra grūdintas, termokarkasas pasižymi dideliu atsparumu drėgmei, vidiniai 2 stiklo sluoksniai yra laminuoti, saugus stiklas. SAULĖS KONTROLĖ: Stiklo paketas su termo danga, užtikrinančią geresnę paketo šilumos izoliaciją.
- Pakuotės storis: 6mm/16mm/4+4mm (30mm).
- Šilumos laidumas UG: 1,12 W/m2.
- Juostų rinkinys, skirtas sandarinimo izoliacijai. Įrengimo klijų rinkinys sandarikliams apdoroti.
- Skardos apdailos dalių rinkinys su sandarinimo hidroizoliacija.
- Siūlių izoliacinės medžiagos.
- A full installation set, and documentation for facade assembly.
- Visų elementų žymėjimas ir speciali stiklinė pakuotė.
TRIPLEX Stiklo plokštės | 6 mm stiklas – 16 mm ARGON90% – 6 mm stiklas – 16 mm ARGON90% – 44,1 EN2PLUS laminuotas
Trikampio formos langai iš laminuoto stiklo paketų kampinių stogų stiklo fasadų dalys. Išorinis stiklas yra grūdintas, termokarkasas pasižymi dideliu atsparumu drėgmei, vidiniai 2 stiklo sluoksniai yra laminuoti, saugus stiklas. Stiklo paketas su termo danga, užtikrinančia geresnę paketo šilumos izoliaciją. Šilumos laidumo koeficientas UG: 0,5-0,8 W/m2.
- Paketo storis: 6 mm/16 mm/6 mm/16 mm/4+4 mm (50 mm).
- Šilumos laidumas UG: 0,7 W/m2.
- Juostų rinkinys, skirtas sandarinimo izoliacijai. Įrengimo klijų rinkinys sandarikliams apdoroti.
- Skardos apdailos dalių rinkinys su sandarinimo hidroizoliacija.
- Siūlių izoliacinės medžiagos.
- Pilnas montavimo rinkinys ir fasado montavimo dokumentacija.
- Visų elementų žymėjimas ir speciali stiklinė pakuotė.
APIE ĮSTIKLINTUS LANGUS :
-
LUX KLASĖS DVIGUBAI ATIDAROMŲ ALIUMINIO DURŲ SISTEMA 2100×1800 mm.
Įėjimas į namą su gaubtu ir prieangiu. LUX CLASS ALU dvigubos durys. Pagrindinis 85 mm ALU profilio durų privalumas – puiki izoliacija. Jos atsparios pažeidimams ir apsaugo namą nuo įsilaužėlių.
- Aliuminio durys turi kelių taškų apsauginį užraktą.
- Jie yra stiprūs ir saugūs.
- Aliuminio durys tiekiamos su įstiklinimo paketu.
- Jo priežiūra labai paprasta.
-
Poliesterio medinė tekstūra
- Puikus atsparumas atmosferos poveikiui, kuriam suteikiama 15 metų garantija lauke, 10 metų – patalpoje
- Ypatingas šveitimo stiprumas
- Geras atsparumas šalčiui
- Puikus paviršiaus lygumas ir glotnumas
- Ypatingas atsparumas atmosferos poveikiui, korozijai, teršalams
- Tolygus padengimas, įvairios spalvos
- Puikus atsparumas smūgiams
- Nedidelis svoris (60 % aliuminio plokštės ir 30 % plieno plokštės svorio) ir lengvas apdorojimas
- Lengva priežiūra

































